Konya’da belediye personel alımı için ilan yayınladı
Bozkır belediyesi yayınladığı ilanla 1 mimar alımı yapacağını duyurdu. Peki başvurular nereden, nasıl ve ne zaman yapılacak? İşte ayrıntılar.
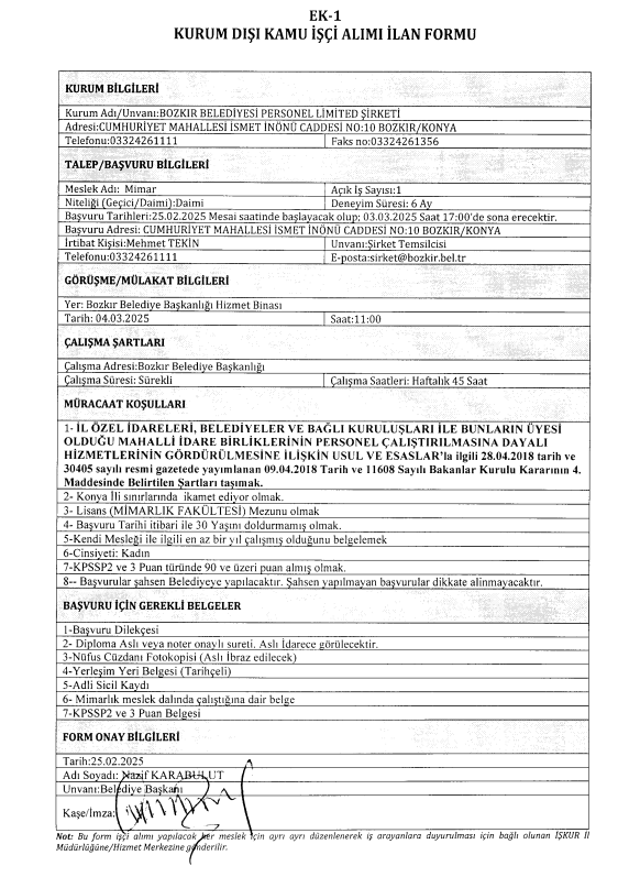
Konya Bozkır Belediyesi Personel Ltd. Şti. 1 mimar alımı yapacak.
Buna göre adaylarda aranan şartlar; İl özel idareleri, belediyeler ve bağlı kuruluşları ile bunların üyesi olduğu mahalli idare birliklerinin personel çalıştırılmasına dayalı hizmetlerinin gördürülmesine ilişkin usul ve esaslar'la ilgili 28.04.2018 tarih ve 30405 sayılı resmi gazetede yayımlanan 09.04.2018 tarih ve 11608 sayılı bakanlar kurulu kararının 4. maddesinde belirtilen şartları taşımak, Konya ili sınırlarında ikamet ediyor olmak, lisans (mimarlık fakültesi) mezunu olmak, başvuru tarihi itibari ile 30 yaşını doldurmamış olmak, kendi mesleği ile ilgili en az bir yıl çalışmış olduğunu belgelemek cinsiyeti: kadın, kpssp2 ve 3 puan türünde 90 ve üzeri puan almış olmak, başvurular şahsen belediyeye yapılacaktır, şahsen yapılmayan başvurular dikkate alınmayacaktır.

BOZKIR BELEDİYESİ İŞ BAŞVURUSU 2025
Alım yapılacak kadroya başvurmak isteyen adaylar 25 Şubat-3 Mart tarihleri arasında Cumhuriyet Mahallesi İsmet İnönü Caddesi No:10 Bozkır/Konya adresine yapabilecek.
BOZKIR BELEDİYESİ İŞ İLANLARI
Başvuru için gerekli belgeler ve ilan detayları ise şu şekilde;

Kaynak:Haber Merkezi


Türkçe karakter kullanılmayan ve büyük harflerle yazılmış yorumlar onaylanmamaktadır.