Selçuklu’da hayata geçirilen imar uygulaması ilçeye değer katacak
Selçuklu Belediyesi Sancak Mahallesi’nde 18. madde imar uygulamasını tamamladı. İlçeye değer katacak projede hak sahiplerine tapularını dağıtmaya başladı. Başkan Pekyatırmacı, “Bölgeye sosyal, kültürel ve yaşam alanları kazandırılacak” dedi.
Selçuklu Belediyesi ilçeye değer katacak önemli bir imar uygulamasını hayata geçirdi.
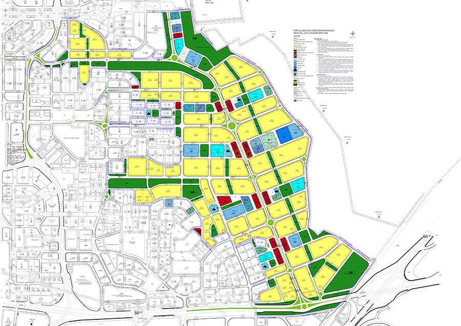
Bu kapsamda Sancak Mahallesi’nde 1 milyon 970 bin 147 metrekare alanda bin 572 maliki ilgilendiren 572 parselde İmar Kanununun 18. Madde imar uygulaması tamamladı.
Yeni uygulama ile Veysel Karani Caddesi’nin doğusu ve Konya Hava Limanı’nın (Askeri Alanın) batısında kalan alanda konut alanlarının yanı sıra belediye hizmet alanları, sağlık tesisi alanları, eğitim alanları, pazar alanları ve parklar oluşturuldu.
Selçuklu Belediyesi vatandaşlara yeni tapularını dağıtmaya başladı.
“SELÇUKLUMUZU GELECEĞE HAZIRLIYORUZ”
Selçuklu’nun Türkiye’nin en düzenli yapılaşmasına sahip ilçelerinden biri olduğunu ifade eden Selçuklu Belediye Başkanı Ahmet Pekyatırmacı, “Bu başarıda şehrin geleceğine yön veren, planlı gelişmesini öngören çalışmalar yapmamız büyük paya sahip. Bu bağlamda yeni imar uygulamalarıyla Selçuklumuzu geleceğe hazırlıyoruz. Sosyal alanlarıyla, park alanlarıyla, diğer kültürel alanlarla, bulunduğu bölgeye değer katacak. Daha yaşanabilir bir ilçe haline getirmek için var gücümüzle çalışıyoruz. Sancak Mahallemizde imar uygulaması çalışmamızı tamamladık ve hak sahiplerine tapu dağıtımına başladık. Yeni imar planı Selçuklumuza hayırlı uğurlu olsun” dedi.

Kaynak:Haber Merkezi




Türkçe karakter kullanılmayan ve büyük harflerle yazılmış yorumlar onaylanmamaktadır.